Código Imovel-1462

Casa - Jardim das Nações - Carambeí- PR

R$ 240.000

Rua China, Quadra 05, Lote 26 - Carambeí

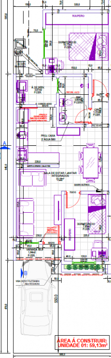
Área Construída: 59m²Área Total: 118m²Banheiros: 1Quartos: 2 Vagas Garagem: 1

Ótima oportunidade em construção para quem busca conforto, funcionalidade e boa localização.

Esta excelente casa está situada na Rua China, no bairro Jardim das Nações, em uma região tranquila e com fácil acesso a comércios, escolas e serviços essenciais.

Diferenciais do Imóvel:

-Planta Funcional: Diferente de muitos modelos atuais, esta casa possui sala e cozinha em ambientes separados, garantindo maior privacidade e organização no dia a dia.

-Espaço Interno: São 59,13m² de área construída muito bem distribuídos, com ambientes claros e arejados.

-Terreno Privativo: Lote de 118m², oferecendo um ótimo espaço externo para garagem e futuras benfeitorias.

Características do Imóvel:

-02 Quartos espaçosos e bem iluminados;

-Sala de estar aconchegante;

-Cozinha independente;

-Banheiro social;

-Área de serviço coberta;

-Vaga de garagem.








Alugar
Comprar Casa
Comprar Terreno
Avaliação de Imovel
Casas Até R$100 000
Casas Até R$200 000
Terrenos Até R$ 40 000
Terrenos Até R$ 80 000
Email: corretoraadeline@gmail.com
Use FGTS como Entrada
Burocracia Facilitada